Silkspring Residence
Silkspring Residence is a freehold high-rise residential project by Airmas Group, located near Jalan Telaga Air in Butterworth. It sits adjacent to WellSpring Residence, another development by the same company, and is approximately 500 metres from the busy Raja Uda area. The location provides convenient access to nearby amenities such as schools, supermarkets, eateries, and transportation links, including Penang Sentral, which is about five minutes away by car.
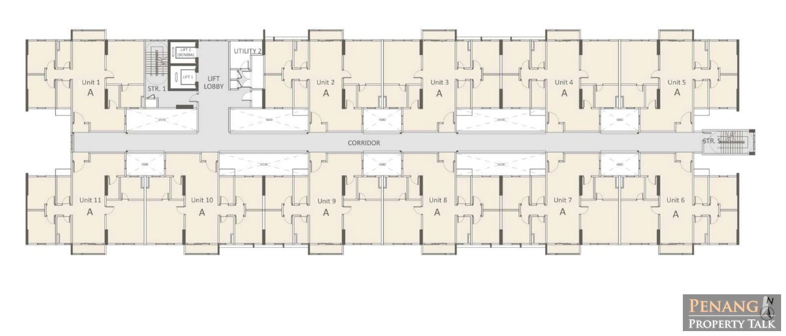
The development consists of an 18-storey building housing a total of 148 units. Each unit follows a single layout design that includes three bedrooms and two bathrooms. With an indicative price starting from RM527,000 onwards.
Property Project : Silkspring Residences
Location : Butterworth
Property Type : Condominium
Tenure: Freehold
Built-up Size: (to be confirmed)
Total Units : 148
Indicative Price : RM527,000 onwards
Developer : Airmas Development Sdn. Bhd.
Register your interest here
Location Map:
DISCLAIMER: This article is solely based on research done using publicly available data at the time of publication. This is not an advertisement. Any claim, statistic, quote or other representation about a project or service should be verified with the developer, provider, or party in question.
Join our Telegram Channel now to receive instant update on Penang latest projects and property news















